株式会社アスタノでは、起業促進と、地域ビジネスの活性化を目的に
インキュベーション施設、Stooq(ストーク)を運営しております。
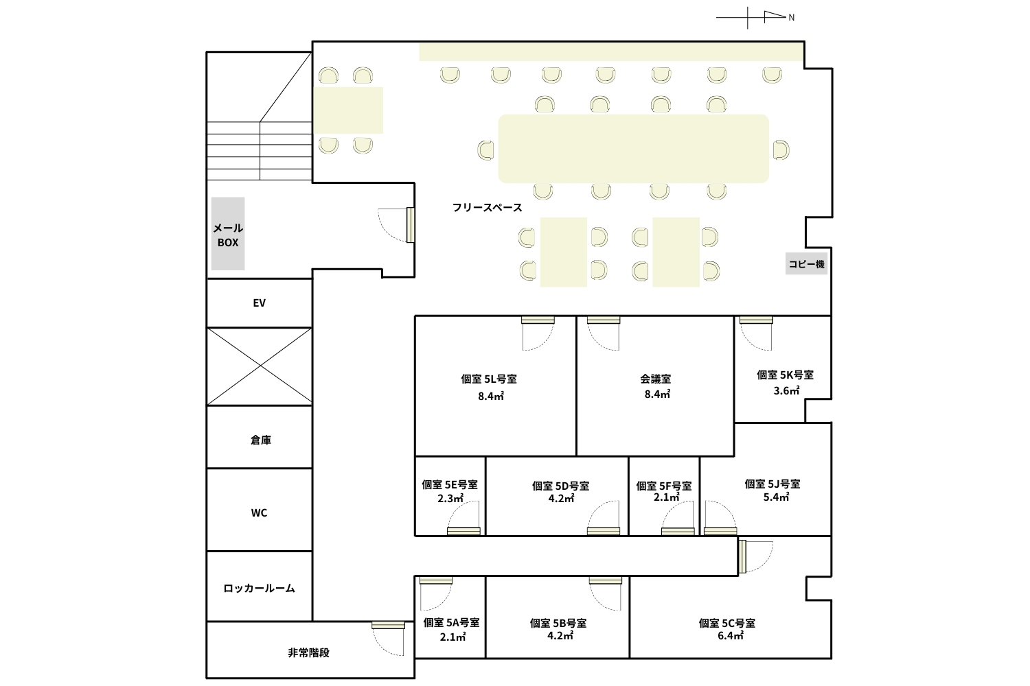
コワーキングスペースと1~5 名利用の個室レンタルオフィスの複合施設でございます。
■フリースペース
カフェテイストのフリースペースになっており、鏡川を眼下に見下ろすカウンター席7席、中央にアイランドガーデンを備えた12席、打ち合わせスペース等を含め30席以上のゆとりのある施設となっております。
個室に加え、外部の方もご利用いただけるスペースで、会員様は日曜祝日含め24時間ご利用可能です。



■設備概要
- ビジネス用高速Wi-Fi
- カラーコピー・カラープリンター複合機
- 会議室(完全個室・モニター・ガラスボード有)
- 郵便ポスト
- SECOMによる24時間警備



■アクセス
高知県高知市梅ノ辻2番4号四国不動産ビル5F
高知市中心部(はりまや橋)より徒歩6分。JR高知駅車5分、高知IC車10 分、高知空港車20分(リムジンバス下車徒歩可)とアクセス抜群お車でお越しの場合も、コインパーキング至近に多数ございます。
■ご利用料金
| サービス名 | 個室会員 | ロッカー会員 | バーチャル会員 | ドロップイン |
| 月額料金 | 42,000〜120,000円/月 | 17,000円/月 | 5,000円/月 | ※休止中 |
| 年間割引適用時の月額料金 | 33,600~96,000円/月 | 13,600円/月 | 4,000円/月 | ─ |
| 入退室カード発行 | 2,000円/枚(再発行5,000円/枚) | ─ | ─ | |
| 契約事務手数料 | 会費1ヶ月分 | ─ | ||
| 登記保証金 | 50,000円(非課税) | ─ | ||
| 電話転送サービス | 9,000円/月 | ─ | ||
| 郵便ポスト | 4,000円/月 | 郵便物転送(月2回)2,000円 | ─ | |
| コピー | 白黒A3/A4:1枚10円 フルカラーA3/A4:1枚50円 | |||
| 会議室 | 1,400円/時 | |||
| 利用時間 | 24時間 不定休 ※年末年始・定期点検・工事等都合により休み | 9:00〜19:00 | ||
※上記料金は全て税抜き表示です。
- 月額利用
- 個室会員:鍵付き個室に加え、フリースペースがご利用可能いただけます。登記利用、住所利用、ポスト等もご利用いただけます。
ロッカー会員:フリースペースのご利用に加え、専用の鍵付きロッカーがご利用いただけます。登記利用、住所利用、ポスト等もご利用いただけます。
バーチャル会員:登記利用、住所利用、ポスト利用等のみご利用いただけます。また、月2回の郵送物転送料金は下記の別料金となっております。
※毎週転送や都度転送をご希望の場合には別途お申し込み時にご相談ください。上記には、電気、水道、Wi-Fi 利用料等が含まれています。
初回申込時のみ契約事務手数料(利用料1 ヵ月分相当)が必要となります。また、登記利用する場合は、登記利用保証金5万円が必要となり、退去後本店等異動完了が確認できる登記簿謄本等をご提出いただいたのちにご返金いたします。 
| 部屋番号 | 専有面積 | 月額料金 | 月額料金 年間割引20%適用時 |
| 5A | 2.1㎡ | ¥43,000 | ¥34,400 |
| 5B | 4.2㎡ | ¥59,000 | ¥47,200 |
| 5C | 6.4㎡ | ¥85,000 | ¥68,000 |
| 5D | 4.2㎡ | ¥59,000 | ¥47,200 |
| 5E | 2.3㎡ | ¥43,000 | ¥34,400 |
| 5F | 2.1㎡ | ¥43,000 | ¥34,400 |
| 5J | 5.4㎡ | ¥68,000 | ¥54,400 |
| 5K | 3.6㎡ | ¥63,500 | ¥50,800 |
| 5L | 8.4㎡ | ¥120,000 | ¥96,000 |

1人用個室
(5A・5E・5F)
3室
2人用個室
(5K)
1室
2~3人用個室
(5J)
1室
4~5人用個室
(5L)
1室
■オプションサービス
- 電話対応代行
- 弊社にて貴社宛てのお電話の受電代行いたします。
受電時は、折返対応、メールでのご連絡等お選びいただけます。
当社にて番号採番いたしますので利用開始まで、最短3 営業日で利用開始可能 - 郵便ポスト利用
- 貴社宛ての郵便物の受け取りが可能となります。
ロッカー会員、バーチャル会員様もご利用可能です。
また、ご希望がございましたら、郵便物の転送も承っております。 - 会議室利用
- 1,400円/時間(税抜)

■その他の会員向けサービス
レンタルオフィス会員、ロッカー会員、バーチャル会員の皆様は以下もご利用いただけます。
- メンター制度
- ベンチャーキャピタリスト、企業経営者、金融機関出身者等からアクセラレーションするために
必要なアドバイス等を日々受けられる機会を提供いたします。 - ファンド出資の機会を提供
- VC、CVC 、エンジェル投資家等との接点を持てる機会を提供
- 事業計画策定支援
- コンサル会社、大手金融機関出身者等による、事業計画の策定支援や、提携パートナーによる
補助金、助成金診断と取得へのアドバイス等を提供 - 金融機関、税理士、弁護士等への相談
- 事業継続上必要な、各種専門家の紹介、定期的な相談会等を実施
各種会員向けサービスに関しては、順次拡大を予定しております。
お申込、ご利用相談、見学のご希望等はエントリーフォームまたはお電話にて、
お問い合わせください。



















